
Casa M: Linee cromatiche - Firenze 2014
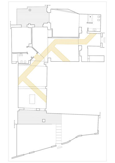
L’appartamento, unico nel suo genere, si trova in pieno centro storico e fa parte di un più ampio intervento di riqualificazione edilizia: al posto di un decadente fabbricato artigianale sono stati ricavati vari appartamenti dal taglio moderno. Al riparo dal caos e dal rumore della città, questo interno urbano ci proietta in un “posto diverso”, lontano dall’idea di Firenze a cui siamo abituati, un ambiente nord-europeo caratterizzato da giardini e orti privati. L’immobile si presentava al grezzo delle finiture lasciando quindi ampio spazio alla personalizzazione da parte del cliente che voleva una casa da vivere con gli ospiti e dove poter organizzare le sue numerose feste. Attraverso piccole modifiche planimetriche è stata creata un’ampia zona giorno con spazi che si susseguono fluidi e composta da un doppio salotto affacciato sul giardino, dalla cucina e dalla sala da pranzo. Completano l’appartamento due camere da letto con altrettanti bagni, una zona di servizio e un piccolo resede tergale. Perno di tutta la casa è la cucina che collega la sala da pranzo al salotto e dalla quale poter conversare e godere della vista del verde. Gli ambienti sono invasi dalla luce che filtra attraverso le ampie vetrate. La fluidità dello spazio è marcata a terra da una guida di eco-resina che disegna nei vari ambienti diverse fughe visive. Il pavimento cosi frammentato è rivestito da doghe di gres porcellanato 20x120 cm montate secondo le rispettive guide di resina. Questo percorso conduce l’ospite dall’ingresso fino al giardino permettendo così di misurare tutto lo spazio domestico. Le finiture sono ricche e curate nei massimi dettagli: grassello per la sala da pranzo e la camera padronale, resina a rivestimento dei due bagni. Sono stati disegnati vari complementi d’arredo specifici per i singoli ambienti come il mobile del bagno padronale resinato in color prugna o la mobilia d’ingresso con il portale finito in foglia d’oro. Particolare attenzione è stata dedicata all’illuminazione dei vari ambienti con strip-led dimerabili, corpi illuminanti firmati e luci sceniche ad esaltare lo spazio. La scelta di componenti led RGB sottolinea ulteriormente il concept progettuale dell’immobile.














