
CASA M+C: Art at home - Florence 2013
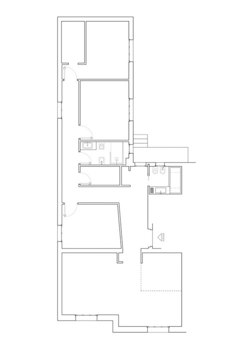
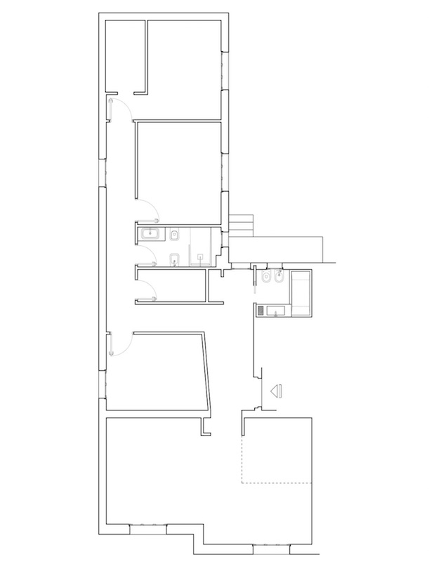
The apartment is located in one of Florence's most beautiful residential areas: the hills above Porta Romana and Poggio Imperiale. The property was in terrible conditions: an anonymous 50's apartment, big and visibly neglected, composed of an entrance hall facing the livingroom, a bedroom, a dinette-kitchen with access to the beautiful private garden; then following a long corridor that gave access to the remaining two rooms and to the only bathroom. Having a close relationship with the owners of the household, we immediately agreed to reinvent the space with a modern approach, creating fluid areas that would host the collection of artworks owned by the couple as a personal gallery where art pieces (RISCRIVERE LA FRASE IN ITALIANO PRIMA). The generous square footage – more than 120sqm net – conceeded to revoultion the arrangement asset, to add a second bathroom, and to create a wide open living space. Masonry backdrops, countertops, and well layed out furniture have defined the different space without visual barriers: the kitchen, the big dining table designed by the architect with recycled and assembled wooden floor planks of various essences as a patchwork, the livingroom. The floor is a one eco-resin “carpet”, single-component, of a neutral color that helps to celebrate the paintings, the vintage objects and the design pieces. Entering the flat, a slightly diagonal wall hosting several paintings generates a dynamic space that immediately divides the living from the more reserved areas of the apartment. A blue streaked resin backdrop conducts us to the night area, passing by a studio room, a block of services, then a bathroom and two bedrooms. The master bedroom is bare and intimate, thanks to walk-in closet that works as a filter and guarantees privacy withouth the need of doors. The wooden floor Pur Vintagein planks of 19cm characterizes all these spaces. The two bathrooms are fully coated in resin. The day-area bathroom has been conceived as a big blue tub, where the ceramic pieces emerge with their white colour. The sink and the bath-tub are built in resin-coated masonry and where designed by the architect. The night area bathroom is also two-colour and characterized by a big shower that occupies the end of the bathroom in its whole width and it is delimited by a wide crystal glass perfectly embedded to the wall and to the floor. A small sail coated in “corten effect” resin illuminates the space and unites visually the sink plane, the ceramic pieces, and the shower. The lighting was conceived to generate space and give value to the exposed objects.














